36090 Old Woman Springs Rd

Lucerne Valley, CA 92356

$340,000 (sold: 9/30/2025) Listing #263313
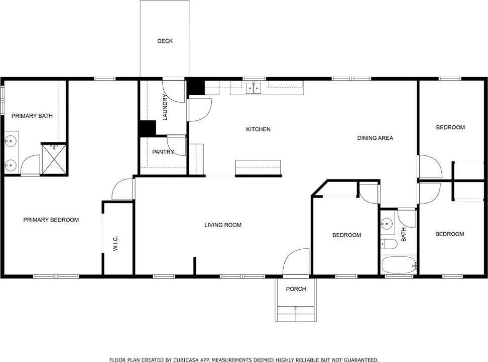
4 Beds 2 Baths 1,782 sq ft Year Built: 2006 Residential Status: Sold

This charming, four bedroom two bath manufactured home offers a perfect blend of comfort and convenience, nestled on a sprawling 1.75-acre lot in the heart of Lucerne Valley. Imagine waking up to amazing mountain views, with ample space for gardening, pets, or simply enjoying the peace and quiet. This home has been thoughtfully updated to provide a modern feel with a touch of rustic charm. You will appreciate the fresh paint inside and out, stainless steel appliances, updated Luxury Vinly flooring, with new recessed lights and ceiling fans in each room. Did I mention your own water well and a workshop that's perfect for the small business owner? Hurry and come see this... and who knows? This could be your Next Home!

Interior Features

Square Feet 1,782

Exterior Features

Lot Size 1.75 acres
Courtesy of Jacob Solis, NextHome Liberty
This content last updated on 12/15/2025 9:49 AM. Some properties which appear for sale on this web site may subsequently have sold or may no longer be available.

Inquire On This Property

Please fill out the form below and I will get back to you regarding your questions as promptly as possible.

Jacob Solis

Jacob Solis Broker / Owner

NextHome Liberty Victorville

CalDRE #: 01911088 Direct: 760.217.3306