10495 SW 100TH Avenue
Ocala, FL 34481
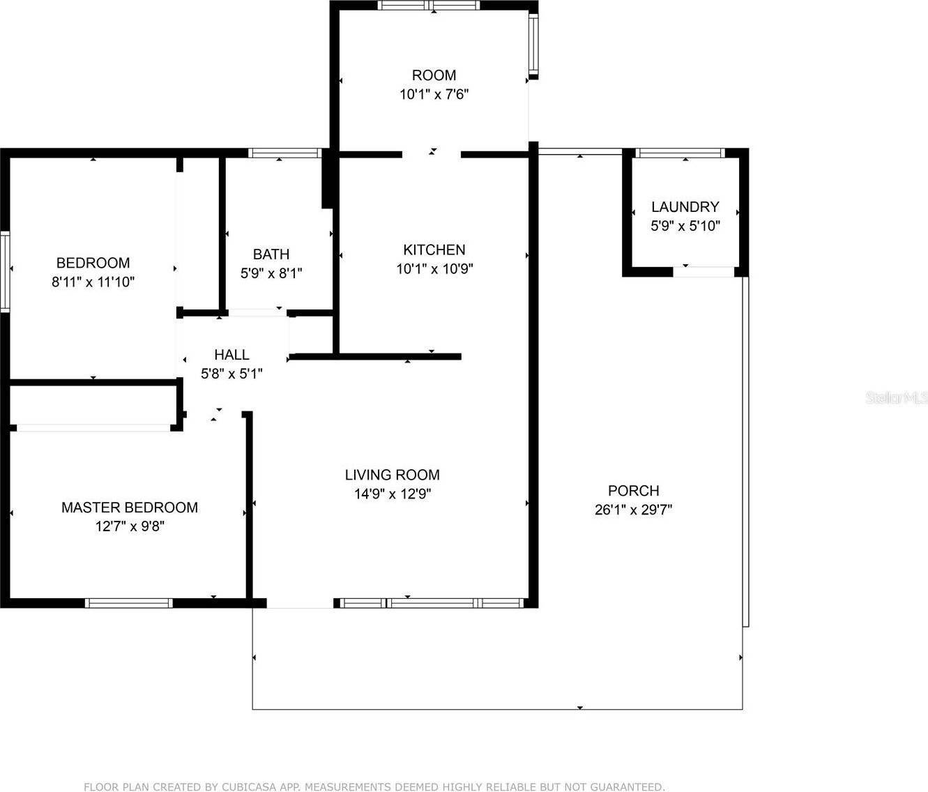
This charming home is move-in ready and full of updates! Nestled on a corner lot, on a peaceful dead-end street, the home features a large picture window that brings in lots of natural light. Electric updated 2023, including new panel, surge protection, outlets & switches. New roof December 2021, New HVAC 2020. Includes kitchen appliances, deep freezer and newer washer & dryer set. Completely updated bathroom. The home boasts updated tile and wood laminate flooring throughout, along with ceiling fans and lighting. Great bonus room or office just beyond the kitchen. Located in Pine Run Estates, a vibrant 55+ deed-restricted gated community. Residents enjoy access to two clubhouses, two pools with hot tubs, tennis and pickleball courts, shuffleboard, a fitness room, a cozy library, and a variety of engaging activities such as BINGO, line dancing, trivia night, bunco, and karaoke. Conveniently situated near abundant shopping, entertainment, offices, and hospitals, Pine Rune Estates offers the perfect blend of serene living and modern convenience, making it a place you'll be proud to call home.
Interior Features
| Square Feet | 672 |
Exterior Features
| Lot Size | 0.30 acres |
