2354 Golden Pond
FentonCharterTownship_Genesee, MI 48430
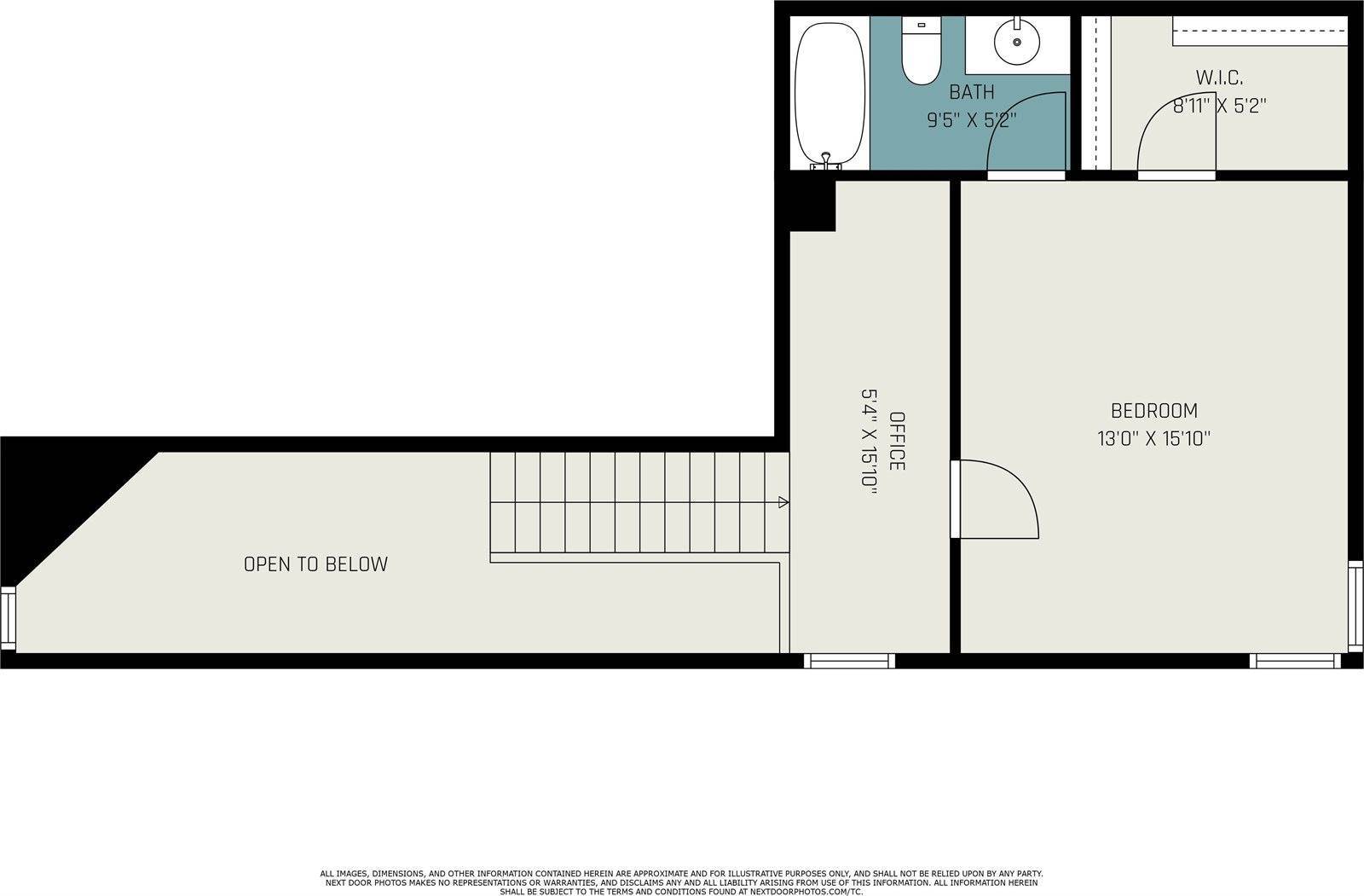
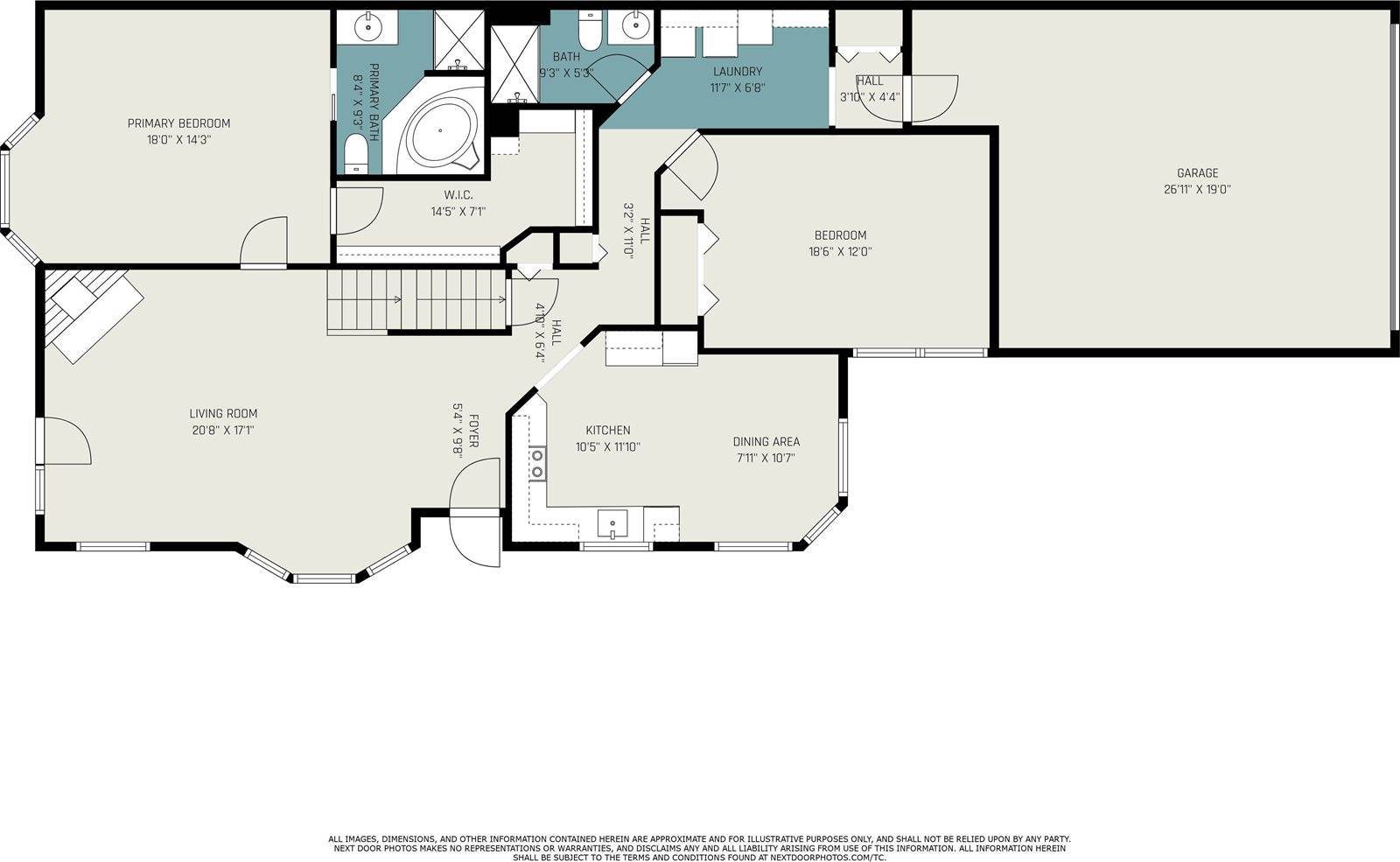
Spacious condo on cul-de-sac with spectacular views as you overlook the woods & pond! Enter the great room, with gas fireplace, bay window, skylights & door wall to upper deck--along with an open stairway leading to the 2nd floor. This home features 2 bedroom suites, one on entry level with bay window and cathedral ceiling-featuring bath & large L-shaped closet with a chandelier! Second bedroom suite is on second floor with attached full bathroom, walk-in closet and loft for home office. The kitchen, including appliances, offers an eating area, granite countertops, tiled backsplash & large deep kitchen sink plus a wooden floor. At the far end of the main floor, there is a 3rd bedroom/den located across from a full bath. The main floor also has a laundry area with lots of storage. The lower level offers an L-shaped family room off lower deck & a large storage room, including a Kinetco Reverse Osmosis System. 2-car attached garage. Newer: furnace, central air, hot water heater, wood floor in kitchen, tiled master bath & tiled upstairs bath, garage door & garbage disposal.
Interior Features
| Square Feet | 2,397 |
