409 Norwood Street
Marquette, MI 49855
Live Where Life Happens: In the heart of North Marquette, just blocks from the beach, NMU, Third Street, & local favorites like the Wooden Nickel & Rice Paddy, this 4-bedroom home puts you right in the middle of it all. Whether you’ve been searching for your own place or a solid rental investment, this one delivers. The garage has space for all your bikes—mountain, road, or e-bike—& the backyard is ready for your four-legged best friend. Inside, there’s room for everyone with four bedrooms, comfortable living spaces, & a layout that works for gathering or spreading out. This neighborhood is more than just convenient—it’s vibrant. Within a block, you’ll find the best tequila selection in town, authentic Thai food, inspired décor from Curio Designs, even an e-bike rental spot for when the Lake Superior breeze calls. Make it your home, your investment, or your next adventure base. Brand new washer & dryer ready for you to use! Other updates include Roof, siding, electric, & plumbing inside & to the street. Here, the North Marquette lifestyle is waiting. All offers reviewed 8/18/25 at 4pm with a response within 24 hours.
Interior Features
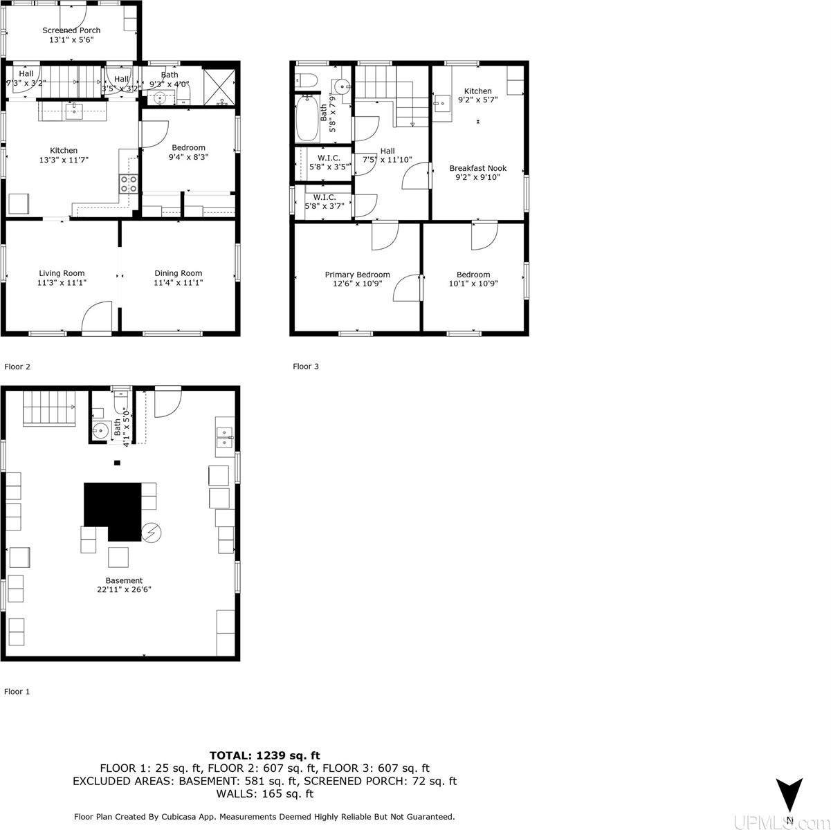
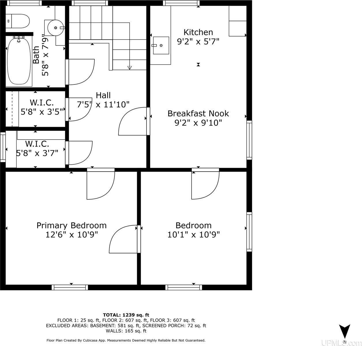
| Square Feet | 1,214 |
Exterior Features
| Lot Size | 0.13 acres |
Virtual Tour
| Virtual Tour URL | https://youtu.be/XNTZWX0oQpA |
