702 Henson Street
Albemarle, NC 28001
$2,250,000
Listing #265740
Year Built: 1998
Commercial
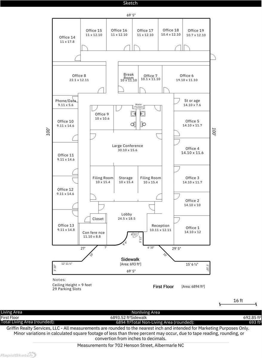
Fully Leased + Opportunity Zone Investment! Prime investment opportunity in the heart of Albemarle! This 6,894 SF commercial building is fully leased with a long-term tenant in place, providing immediate and stable cash flow. Situated on 2.87 acres, the
property offers ample parking, excellent visibility, and convenient access to major highways. This property is located within a federally designated Qualified Opportunity Zone (QOZ), making it an especially attractive option for investors seeking potential
federal tax incentives while capitalizing on Albemarle’s growth. Turnkey and income-producing, 702 Henson Street is ideal for buyers looking to expand their portfolio with a property that delivers both consistent returns and future upside. Please contact the
listing broker for financial details and showing arrangements. Do not disturb the tenant.
Exterior Features
| Lot Size | 2.87 acres |
Virtual Tour
| Virtual Tour URL | https://alphavista.biz/702hensonstunbranded/ |
Courtesy of Dawn Westall, NextHome Providence
This content last updated on 12/14/2025 11:24 AM. Some properties which appear for sale on this web site may subsequently have sold or may no longer be available.
