1909 Chapel Brook Way
Greensboro, NC 27405
$363,000 (sold: 10/24/2025)
Listing #274127
5 Beds
3+ Baths
Year Built: 2017
Residential
Status: Sold
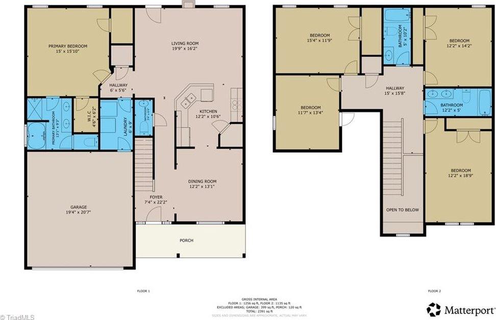
MOTIVATED SELLER. BRING ALL OFFERS! This spacious and well-maintained 5-bedroom, 3.5-bathroom home offers the perfect blend of comfort, space, and convenience in the Chapel Ridge subdivision. Boasting approximately 2,400 square feet, this two-story residence
features the perfect floor plan ideal for entertaining and everyday living. Enjoy a bright and airy living area, formal dining room, and a generously sized kitchen with ample counter space and storage. The primary suite is a true retreat with a large walk-in
closet and en suite bath, while additional bedrooms offer plenty of flexibility for guests, a home office, or playroom. Outside, relax or entertain in the private backyard—perfect for gatherings, gardening, or enjoying North Carolina’s beautiful seasons. Located
just minutes from major highways, shopping, dining, and parks, this home combines peaceful neighborhood living with easy access to all that Greensboro has to offer.
Exterior Features
| Lot Size | 0.15 acres |
Virtual Tour
| Virtual Tour URL | https://my.matterport.com/show/?m=uREt7VBtSiQ |
Courtesy of Steve and Wendy Farmer, NextHome Realty Partners
This content last updated on 12/14/2025 10:26 AM. Some properties which appear for sale on this web site may subsequently have sold or may no longer be available.
