4709 Freeman Road

Royalton, NY 14105

$352,500 (sold: 7/25/2025) Listing #269724
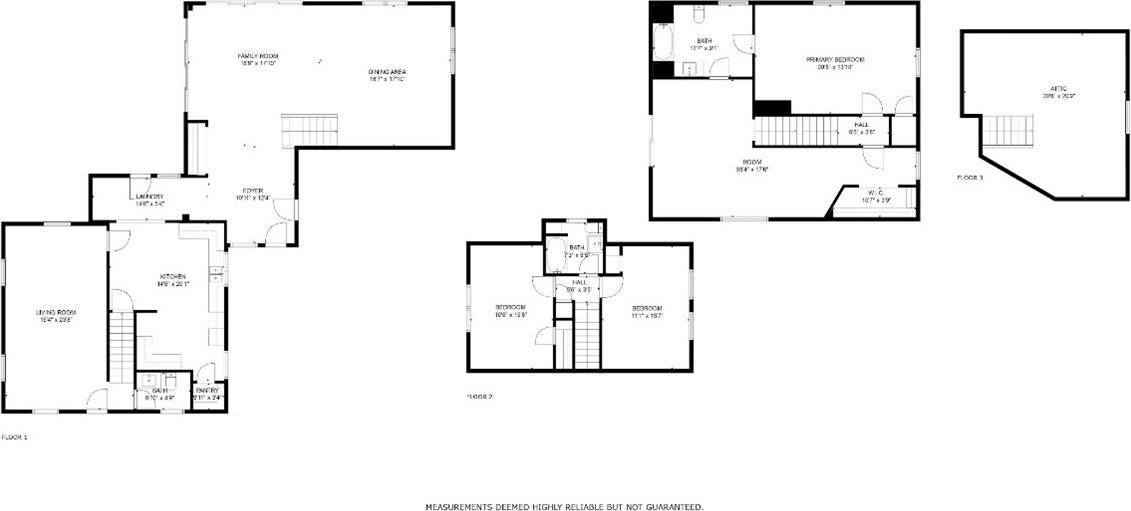
4 Beds 2+ Baths 2,669 sq ft Year Built: 1860 Residential Status: Sold

This fully remodeled home, situated on a tranquil corner lot in the heart of Royalton, NY, offers the perfect blend of modern upgrades and country charm. Surrounded by beautiful, open fields, this property provides a serene and private setting while still being conveniently close to town. Almost every aspect of this home has been thoughtfully redesigned and updated, creating a bright, open, and inviting atmosphere. The entire roof was replaced in 2025 with durable metal, ensuring long-term reliability and peace of mind. Inside, the home boasts a fully remodeled kitchen offering both style and functionality. As well as the addition of a nice spacious pantry. The main floor layout has been reimagined to enhance flow and maximize space, making the home feel more open and functional. With vaulted ceilings, walls of sliding glass doors and many windows including 9 brand-new ones, natural light floods every room creating a warm, airy ambiance. A newly added bonus room on the third floor serves as both a convenient storage area and home to the brand-new furnace, giving you extra space to grow. The main floor also features a brand-new half bath. In addition the upstairs full bath has been completely remodeled and feels brand new, showcasing stunning, all-new tile and sleek fixtures that create a spa-like atmosphere. The home has also been updated with 3 new exterior doors, flooring, and countless other upgrades, making it move-in ready. Set on a quiet corner lot, surrounded by scenic views, this property offers a peaceful retreat from everyday life. Whether you’re enjoying the open space of the fields or relaxing inside your beautifully updated home, this property is a true gem in Royalton. Delayed negotiations will end on June 24th at 6:00 PM

Interior Features

Square Feet 2,669

Exterior Features

Lot Size 0.54 acres
Courtesy of Emily Reynolds, NextHome Brixwood
This content last updated on 12/7/2025 11:12 PM. Some properties which appear for sale on this web site may subsequently have sold or may no longer be available.

Inquire On This Property

Please fill out the form below and I will get back to you regarding your questions as promptly as possible.

Emily Reynolds

Emily Reynolds Agent

NextHome Brixwood Batavia

Photo of Emily Reynolds
NY License #: 10401373221 Office: 585.204.0612
Professional Designations: REALTOR