2784 Blue Spruce Drive
Green Bay, WI 54311
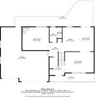
This Bellevue home offers a blend of comfort, style, and functionality, perfect for modern living. The Kitchen Features a breakfast bar, ideal for both everyday meals or gatherings, quartz counters, pantry and an abundance of cabinets. The primary bedroom suite, boasts not one, but two standard closets, plus a walk-in closet. The inviting family room, is warmed by a cozy gas fireplace, and the large living room provides addition entertaining space. For those needing extra storage, the oversized 3-car garage offers ample room for vehicles, tools, and recreational equipment. All offer to be submitted by 4pm on 4/7/2025. Seller request closing of property no sooner than 6/6/2025.
Interior Features
| Square Feet | 1,994 |
Exterior Features
| Lot Size | 0.34 acres |
