510 Jersey Drive
Tuscaloosa, AL 35405
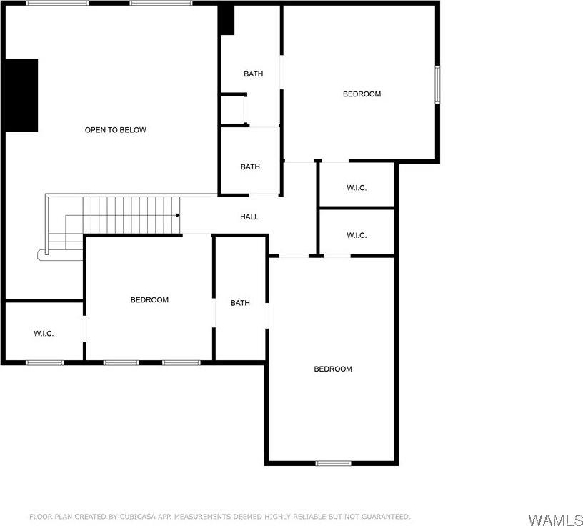
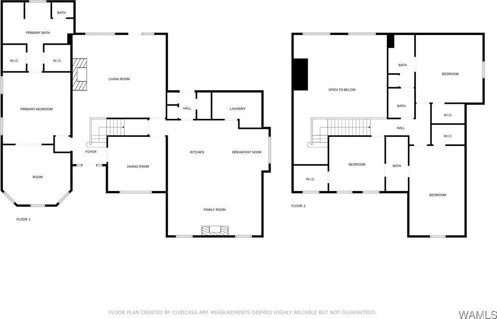
Listing #270848
4 Beds
3+ Baths
3,913 sq ft
Year Built: 2005
Residential
Status: Pending
This meticulously maintained, one-owner brick residence offers four generously sized bedrooms. The main living areas feature genuine hardwood flooring, a formal dining room designed for elegant entertaining, and a Two gas fireplaces that add warmth and
ambiance. The expansive primary suite includes a dedicated sitting area or home office space, providing versatile functionality. Each bedroom boasts abundant closet space for ample storage. The kitchen is complemented by a cozy sitting area for casual gatherings.
Additional amenities include a three-car garage and a spacious backyard with a covered patio, great for outdoor living and entertaining. This exceptional home combines quality craftsmanship with thoughtful design. Schedule a tour today!
Interior Features
| Square Feet | 3,913 |
Exterior Features
| Lot Size | 0.47 acres |
Courtesy of Legacy Lane Listings, NextHome Legacy Group
This content last updated on 12/15/2025 4:41 AM. Some properties which appear for sale on this web site may subsequently have sold or may no longer be available.
