12955 East Center Ave
Aurora, CO 80012
$489,000
Listing #288467
3 Beds
1+ Baths
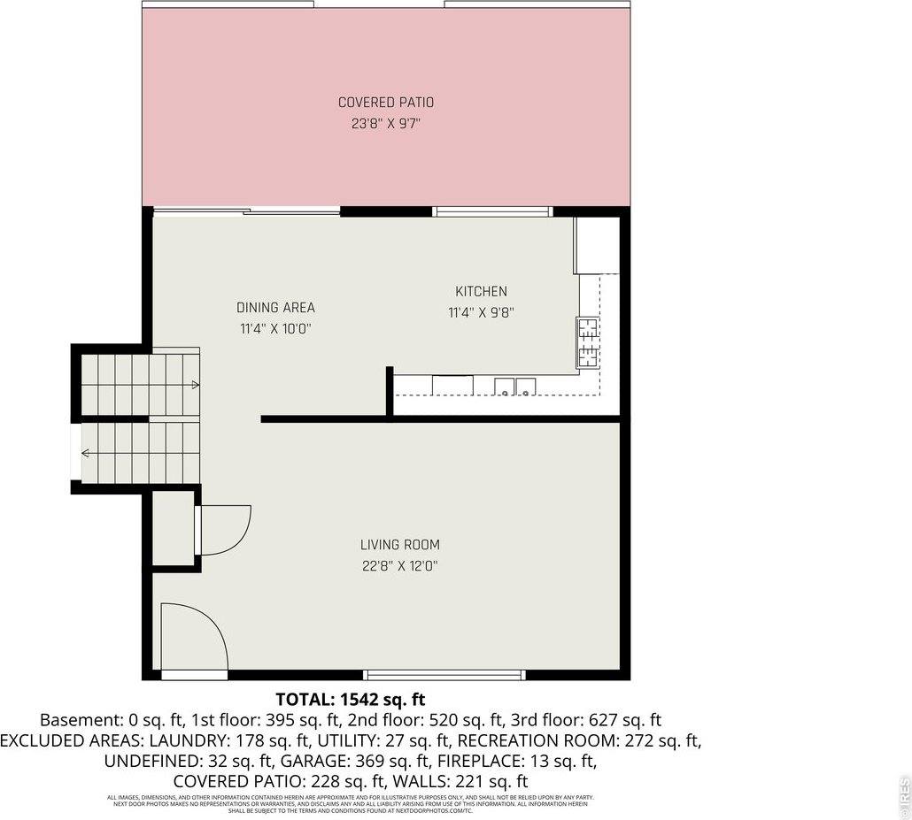
2,235 sq ft
Year Built: 1969
Residential
Pride of ownership shines throughout this lovingly maintained tri-level home in Aurora! The main level welcomes you with a generous living room and open, functional kitchen - perfect for everyday living and entertaining. Upstairs you'll find three comfortable
bedrooms, a full guest bath, and a primary suite complete with an attached 3/4 bath. Head down to the lower-level family room anchored by a classic wood-burning fireplace - the perfect gathering spot on Colorado evenings. The finished basement adds versatile
space and includes a sump pump and radon mitigation system for peace of mind. Step outside to a beautifully landscaped yard bursting with seasonal perennial blooms, a covered patio ideal for Colorado summers, a handy storage shed, and a large backyard ready
for your enjoyment. This home has been cared for with extraordinary attention to detail - nothing has been overlooked
Interior Features
| Square Feet | 2,235 |
Exterior Features
| Lot Size | 0.17 acres |
Courtesy of Andrew Sanburg, NextHome Rocky Mountain
This content last updated on 4/23/2026 7:40 PM. Some properties which appear for sale on this web site may subsequently have sold or may no longer be available.
