3343 Newbury St
Manhattan, KS 66503
$419,950
Listing #288573
5 Beds
3 Baths
Year Built: 1989
Residential
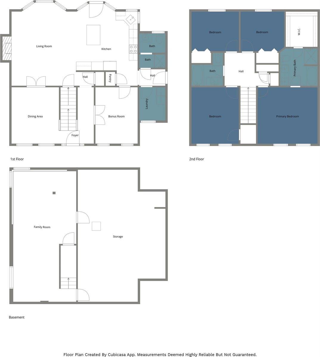
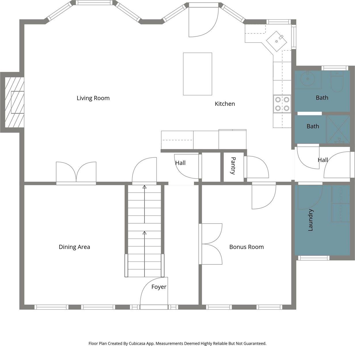
This pristine colonial home sits on a large lot and offers the perfect blend of functionality, flexibility, and future potential in a desirable Manhattan location. Step inside to an inviting open-concept living area ideal for both everyday living and entertaining.
The main floor features convenient laundry, a full bathroom, and a versatile bonus room—perfect for a home office, guest space, or additional living area. Upstairs, you’ll find a generous primary suite along with three additional bedrooms and a second full
bathroom, providing plenty of space for family or guests. The partially finished basement adds even more living space, along with a substantial amount of unfinished square footage and a bathroom rough-in—offering a great opportunity to build equity and customize
to your needs. Enjoy the outdoors in the fully fenced backyard, complete with a covered deck that’s perfect for relaxing or entertaining year-round.
Exterior Features
| Lot Size | 0.25 acres |
Courtesy of Mary Froese-Swartz, NextHome Professionals
This content last updated on 4/24/2026 6:24 AM. Some properties which appear for sale on this web site may subsequently have sold or may no longer be available.
