60 West Street
Bangor, ME 04401
$299,000
Listing #288163
4 Beds
1+ Baths
Year Built: 1910
Residential
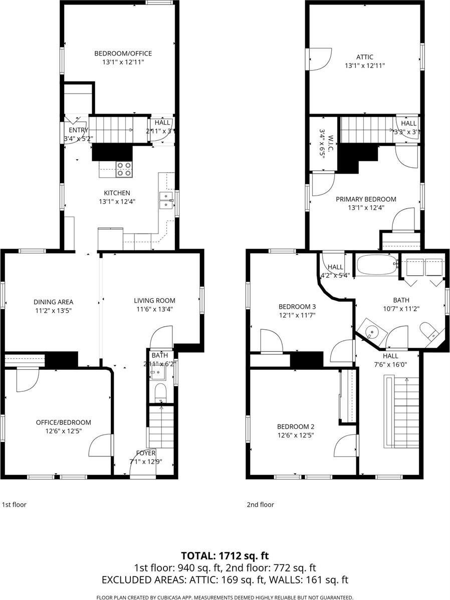
New roof. Flexible layout. Walkable Fairmount location. This 4-5 bedroom home provides move-in comfort with room to grow. Classic character meets modern comfort in this well-maintained home in Bangor's sought-after Fairmount neighborhood. High ceilings,
hardwood floors, and natural light create a warm, inviting feel throughout the main level, featuring a flexible living and dining space alongside an updated kitchen with white cabinetry and stainless appliances. If you need a first-floor bedroom and half bath,
this home will provide that. It's also ideal for guests, or a home office, with convenient one-level living. The front room can be an office or bedroom, and there's another first floor room off the kitchen that will work as well. Upstairs, you'll find three
additional bedrooms, a refreshed full bath, and bonus unfinished attic space ready for your vision. Recent improvements include a new architectural shingle roof, adding long-term value and peace of mind. Set on a quiet side street, the home also features a
covered front porch, off-street parking, and a backyard shed. Just minutes from parks, schools, and downtown Bangor. A move-in ready opportunity with room to grow in one of the city's most walkable neighborhoods. So many options to choose from, call today
to schedule your private showing.
Exterior Features
| Lot Size | 0.17 acres |
Virtual Tour
| Virtual Tour URL | https://www.propertypanorama.com/instaview/mreis/1656502 |
Courtesy of Rhombus Realty Group, NextHome Experience
This content last updated on 4/23/2026 9:24 PM. Some properties which appear for sale on this web site may subsequently have sold or may no longer be available.
