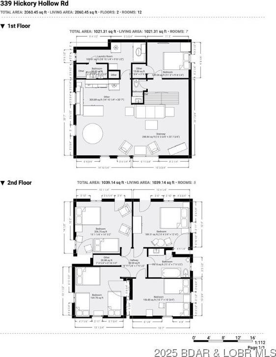
339 Hickory Hollow Road
Sunrise Beach, MO 65079
$675,000
Listing #280576
5 Beds
2+ Baths
2,048 sq ft
Residential
**STUNNING MAIN CHANNEL VIEWS & TIMELESS LAKEFRONT LIVING** Experience classic Lake of the Ozarks living with unbeatable main-channel views, breathtaking sunsets, and endless opportunities for fishing, boating, and swimming. Ideally located just off Hwy
MM, this property sits in a desirable neighborhood on an end lot, offering added privacy and plenty of parking for guests. Lovingly cared for by the same family since 1969, this home blends charm with thoughtful updates, including an updated kitchen, bath
and Mini-Splits in all upstairs bedrooms. The cozy fireplace is perfect for year-round enjoyment. Extend your living space outdoors to the expansive patio ideal for dining, entertaining, or simply taking in the panoramic lake views. With convenient access
to numerous waterfront establishments by both land and water, this property delivers the perfect blend of location, history, and lake life. Whether you’re seeking a weekend retreat, a full-time residence, or investment property this one is for you. * Lot across
the road is available for extra $$*
Interior Features
| Square Feet | 2,048 |
Virtual Tour
| Virtual Tour URL | https://youtu.be/rTFNSQqFx9A |
Courtesy of Jodi Hendrix, NextHome Gadwood Group
This content last updated on 12/10/2025 7:13 AM. Some properties which appear for sale on this web site may subsequently have sold or may no longer be available.
