219 Bass Road
Florence, MS 39073
$945,000
Listing #288099
12 Beds
7 Baths
7,401 sq ft
Year Built: 1985
Commercial
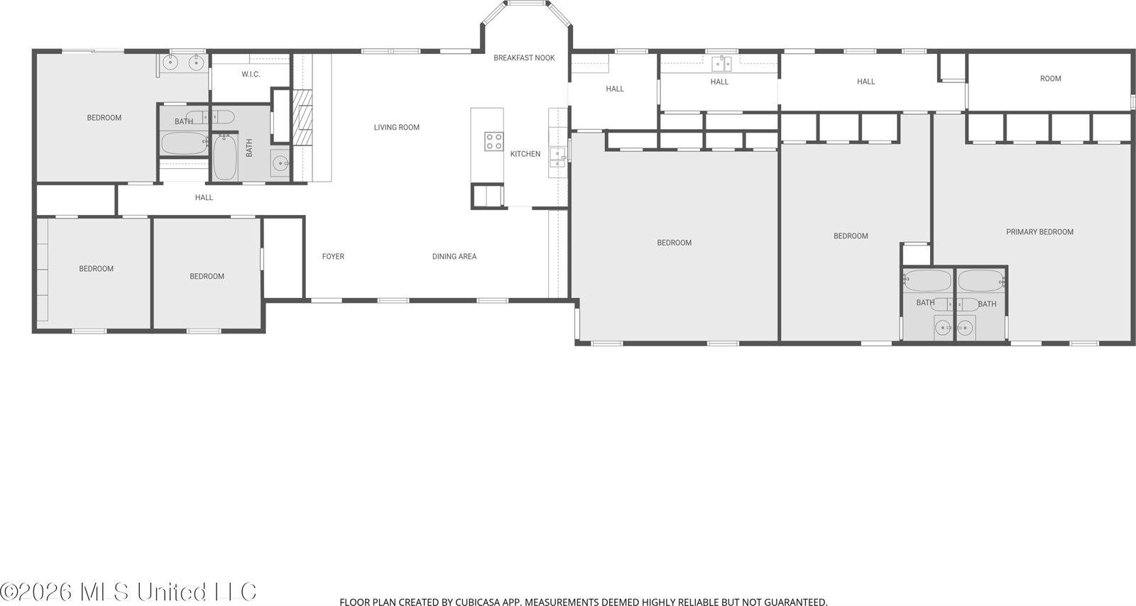
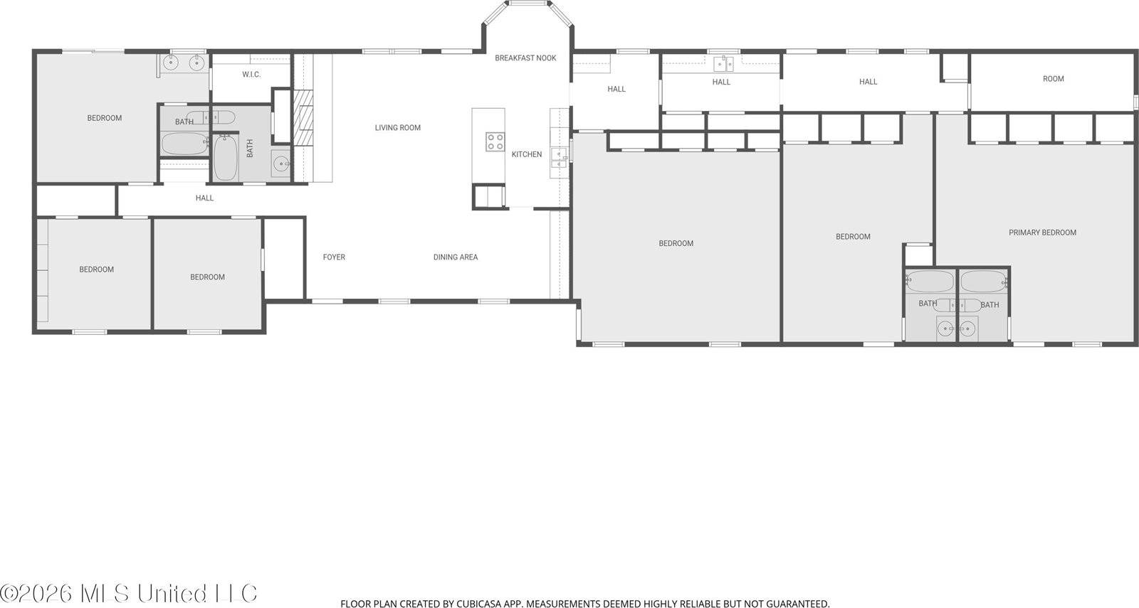
A Rare Opportunity on Five Acres!Once a thriving country nursing home, this unique sprawling property features two substantial 3000 sq ft +- brick homes and is ready for its next chapter. Whether you're envisioning a retreat, summer camp, care facility,
or a private compound for a large group, this property offers the space and versatility to make it happen. Both home have been updated with new roofs. Home 1 welcomes you as you enter through the gate. Inside, you'll find a generous dining and entertainment
room flowing into the kitchen -- perfect for gathering large groups. The home offers six bedrooms with 16 closets, comfortably accommodating up to 16 people, along with three full bathrooms and a dedicated laundry room built to handle the demands of a full
house.Home 2 is just a short walk away and is equally impressive. Six oversized bedrooms with 16 closets make this home just as accommodating as its neighbor. Three nicely remodeled bathrooms serve the space, along with a laundry room equipped with hookups
for three washers and three dryers. Two kitchen areas -- one small and one large -- offer flexibility for any use. A spacious dining area, a den with a fireplace, and an expansive screened-in back porch round out this home's appeal. A new central HVAC makes
this home complete and ready for your group. Also on the property are three mobile homes behind House 2, which would need rehabilitation before use, offering additional potential for the right buyer.With the capacity to house 30+ people in a peaceful country
setting, this property is truly one of a kind.
Interior Features
| Square Feet | 7,401 |
Exterior Features
| Lot Size | 5.00 acres |
Virtual Tour
| Virtual Tour URL | https://www.propertypanorama.com/219-Bass-Road-Florence-MS-39073/unbranded |
Courtesy of Ryan Porter, NextHome Realty Experience
This content last updated on 4/24/2026 8:45 AM. Some properties which appear for sale on this web site may subsequently have sold or may no longer be available.
