433 Aldon Circle, #303
Ashwaubenon, WI 54304
$649,900
Listing #282792
2 Beds
2 Baths
1,802 sq ft
Year Built: 2026
Condo / Town home
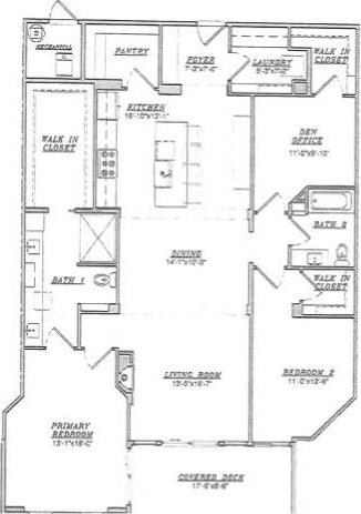
Discover luxury living in this 1,802 sq. ft. condo overlooking the Fox River and Ashwaubenon Creek at Station 433. Designed with high-end finishes, the open layout connects kitchen, dining, and living areas with fireplace. Step onto your covered deck for
serene views. This home features 2 bedrooms, 2 baths, and a flexible office/den that could serve as a 3rd bedroom—all with walk-in closets. The primary suite includes a tiled shower and walk-in closet. The chef’s kitchen boasts a large island and pantry. Enjoy
community amenities: clubhouse, workout room, and outdoor pool. Includes 2 underground parking spaces. Ideally located near shopping, dining, and Lambeau Field, this penthouse offers modern luxury and convenience. LP Smart Siding
Interior Features
| Square Feet | 1,802 |
Exterior Features
| Lot Size | 0.90 acres |
Courtesy of Ryan Radue, NextHome Select Realty
This content last updated on 3/20/2026 9:43 PM. Some properties which appear for sale on this web site may subsequently have sold or may no longer be available.
